Bestlage Nähe Mariahilferstraße! Sonniges 2-Zimmer-Büro mit Eigengarten in Biedermeier-Haus
1060 Wien, Büro zum Kauf
Kontaktdaten
-
NameFrau Desirée Gottlieb
-
PositionGeschäftsführung - Akademisch geprüfte Immobilienberaterin und Liegenschaftsmanagerin
-
FirmaGottlieb Properties Immobilientreuhand GmbH
-
AnschriftGluckgasse 1 / 8 & 9
1010 Wien -
Mobil
Objektdaten
-
Objekt-ID4004
-
ObjekttypenBüro, Büro/Praxis
-
Adresse1060 Wien
(Mariahilfer Straße / Haus des Meeres)
Wien -
EtageEG
-
Etagen im Haus4
-
Nutzfläche ca.54,29 m²
-
Bürofläche ca.40,23 m²
-
Kellerfläche ca.1,96 m²
-
Balkon-/Terrassenfläche ca.6,79 m²
-
Gartenfläche ca.49,45 m²
-
Zimmer1
-
Badezimmer1
-
Separate WC1
-
Terrassen1
-
KücheTeeküche
-
HeizungsartEtagenheizung
-
Wesentlicher EnergieträgerGas
-
Baujahr1824
-
Zustandvollsaniert
-
Erschließungvollerschlossen
-
Heizwärmebedarf (HWB)115,30 kWh/(m²·a) (Klasse D)
-
Gesamtenergieeffizienz-Faktor (fGEE)1,70 (Klasse C)
-
Käuferprovision3 % des Kaufpreises zzgl. 20 % USt.
-
Kaufpreis pro m²7.183,64 EUR
-
Monatliche Kosten netto105,05 EUR
-
Monatliche Kosten MwSt.12,23 EUR
-
Sonstige Kosten netto43,92 EUR
-
Kaufpreis390.000 EUR
-
Betriebskosten netto61,13 EUR
-
Betriebskosten MwSt.12,23 EUR
Ausstattung / Merkmale
- ✓ Altbau
- ✓ Balkon/Terrasse Südost
- ✓ Barrierefrei
- ✓ Dusche
- ✓ Fahrradraum
- ✓ Fliesenboden
- ✓ Garten
- ✓ Kabel-/Sat-TV
- ✓ Parkettboden
- ✓ Separates WC
- ✓ Teeküche
- ✓ Terrasse
Energieausweis
Objektbeschreibung
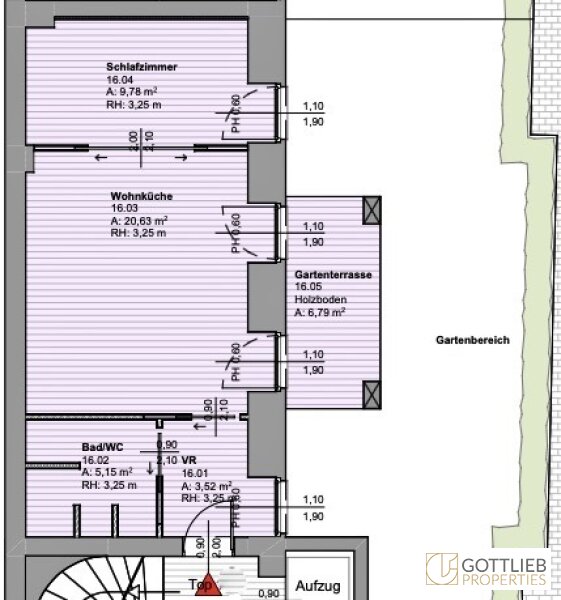
Mitten im 6. Wiener Gemeindebezirk gelangt in einem umfassend sanierten Biedermeier-Haus aus dem Jahre 1824 mit typisch gegliederter Fassade ein im Erdgeschoss gelegenes, helles, gepflegtes, sehr gut geschnittenes 2-Zimmer-Büro mit ca. 40 m² Bürofläche und einem ca. 49 m² großen Eigengarten mit Terrasse zum sofortigen Verkauf.
Man betritt diese Liegenschaft durch einen kleinen Vorraum und erreicht direkt das angrenzende ca. 21 m² große Büro mit Tee-Küche und Essbereich sowie das ca. 5 m² große Duschbad mit Toilette. Das Büro kann durch eine Schiebetüre um einen weiteren ca.10 m² großen Raum erweitert werden, durch welchen man in den im ruhigen Innenhof gelegenen, südostseitig ausgerichteten Eigengarten mit Terrasse gelangt.
Dem Büro ist ein Kellerabteil zugeordnet.
- barrierefrei
- Erdgeschoss
- ca. 40,23 m² Bürofläche
- ca. 49,45 m² Eigengarten inklusive
- ca, 6,79 m² Terrasse
- ca. 3,52 m² Eingangsbereich
- ca. 20,63 m² Büro mit Tee-Küche
- ca. 9,78 m² weiteres Büro
- ca. 5,15 m² Duschbad mit Toilette
- dem Büro ist ein Kellerabteil zugeordnet
Ausstattung
- komplett ausgestattete Tee-Küche mit Einbaugeräten und Ess-Bereich
- Duschbad mit Waschbecken, Handtuchwärmer, Waschmaschinen-Anschluss und Toilette
- Parkettböden
- Fliesenböden
- Gasetagenheizung
Verkehrsanbindung
- U-Bahn-Linien U3, U4, U6
- Autobus-Linie 13A, 14A, 57A
- Straßenbahn-Linie 18
Infrastruktur
Die einzigartige Lage dieses Büros zwischen Linker Wienzeile und der Fußgängerzone der Mariahilfer Strasse bietet zahlreiche Einkaufsmöglichkeiten, diverse Lokale, klassische Wiener Kaffeehäuser, Ärzte, Banken sowie Apotheken. Der nahegelegene Naschmarkt mit seinen unverwechselbaren Marktständen und dem Flohmarkt lädt zum Verweilen und Einkaufen ein. Veranstaltungsorte, wie z.B. der 'Stadtsaal', das Apollo-Kino und kulturelle Angebote im Museumsquartier sowie im Kunst- und Naturhistorischen Museum, im Raimundtheater, genauso wie in der Wiener Innenstadt sind fußläufig sehr gut erreichbar und bieten gelungene Freizeitmöglichkeiten.
Als Naherholungsgebiet empfiehlt sich der Hubert-Marischka-Park sowie das 'Haus des Meeres' mit seinen Grünflächen und Spielplätzen.
Mit dem Auto gelangt man in Kürze über die Linke Wienzeile zur Wiener Westausfahrt in Fahrtrichtung Autobahn A1.
Sonstiges
Wir ersuchen um Verständnis, dass wir aufgrund unserer Nachweispflicht gegenüber dem Eigentümer nur Anfragen mit vollständigen Kontaktdaten (Name, Adresse, Mobilnummer, Email) bearbeiten können.
Wir weisen darauf hin, dass zwischen dem Vermittler und dem zu vermittelnden Dritten ein familiäres oder wirtschaftliches Naheverhältnis besteht.
Der Vermittler ist als Doppelmakler tätig.
Lage
Bus 500 m | Straßenbahn 500 m | U-Bahn 500 m | Bahnhof 500 m | Autobahnanschluss 4,50 km | Supermarkt 500 m | Bäckerei 500 m | Einkaufszentrum 500 m | Ärzte 500 m | Apotheke 500 m | Krankenhaus 500 m | Klink 500 m | Schule 500 m | Kindergarten 500 m | Universität 1 km | Höhere Schule 1 km | Bank 500 m | Post 500 m | Polizei 500 m | Geldautomat 500 m
Die ungefähre Position der Immobilie auf Google Maps ansehen (Link auf externe Website)












