Bestlage historische Altstadt! Gründerzeit-Villa mit modernem Zubau und Parkplätzen
811 05 Bratislava (Slowakei), Bürogebäude zum Kauf
Kontaktdaten
-
NameFrau Desirée Gottlieb
Geschäftsführung - Akademisch geprüfte Immobilienberaterin und Liegenschaftsmanagerin -
FirmaGottlieb Properties Immobilientreuhand GmbH
-
AdresseGluckgasse 1 / 8 & 9
1010 Wien -
E-Mail Direkt
-
Mobil
Topobjekt, Topobjekte
Objektdaten
-
Objekt ID3883
-
ObjekttypenBürogebäude, Renditeobjekt
-
Adresse(Altstadt - Stefanikova)
811 05 Bratislava
Bratislava
Slowakei -
Etagen im Haus4
-
Grundstück ca.1.040 m²
-
Nutzfläche ca.1.313,40 m²
-
Bürofläche ca.1.294,50 m²
-
Freifläche ca.685,30 m²
-
Balkon-/Terrassenfläche ca.8 m²
-
Zimmer32
-
Badezimmer2
-
Separate WC11
-
Balkone3
-
HeizungsartZentralheizung
-
Wesentlicher EnergieträgerGas
-
Baujahr1895
-
Zustandvollsaniert
-
Erschließungvollerschlossen
-
Stellplätze gesamt15
-
Stellplätze15 Stellplätze
-
ProvisionspflichtigJa
-
Käuferprovision3% des Kaufpreises zzgl. 20% USt.
-
Kaufpreis pro m²2.740,98 EUR
-
Kaufpreis4.320.000 EUR
-
Kaufpreis MwSt.720.000,00 EUR
-
Kaufpreis netto3.600.000 EUR
Ausstattung / Merkmale
- ✓ Abstellraum
- ✓ Alarmanlage
- ✓ Altbau
- ✓ Außenstellplatz
- ✓ Balkon
- ✓ Barrierefrei
- ✓ Fliesenboden
- ✓ Klimatisiert
- ✓ Marmorboden
- ✓ Parkettboden
- ✓ Personenaufzug
- ✓ Rollstuhlgerecht
- ✓ Separates WC
- ✓ Steinboden
- ✓ Teeküche
Objektbeschreibung
Beschreibung
Zum sofortigen Verkauf gelangt - inmitten der historischen Altstadt Bratislavas gelegen - eine im Jahre 1895 vom damals berühmten Architekten Ferdinand Kittler im eklektischen Stil errichtete Villa. 'Pentzel's Villa' - benannt nach seinem Auftraggeber Julius Pentzel - wurde im Jahre 2000 generalsaniert und um ein mit Tageslicht durchflutetes Bürohaus sowie 15 Parkplätze im Innenhof erweitert.
Die ostwest-seitig ausgerichtete Liegenschaft besteht somit aus zwei miteinander verbundenen Trakten - der historischen, liebevoll renovierten Gründerzeit-Villa sowie einem modernen, geräumigen Zubau, welche sich für die Nutzung als Bürokomplex oder für Gemeinschaftspraxen hervorragend anbietet.
Das gesamte Objekt umfasst auf insgesamt vier Ebenen Büros, Meeting- und Nebenräume sowie eine große Freifläche im Innenhof mit 15 Auto-Abstellplätzen.
Der Bestand
+ ca. 1.040 m² Grundstücksfläche
+ ca. 605 m² Altbestand
+ ca. 690 m² Neubau
+ ca. 1.313 m² Büronutzfläche gesamt
+ 15 Stellplätze
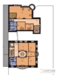
Erdgeschoss:
+ ca. 354 m² Gesamtfläche, davon:
+ 39 m² Eingangsbereich
+ drei Büroräume
+ ein Konferenzzimmer
+ Nebenräume wie Portierloge, Küche, Abstellräume und Toiletten
1. Obergeschoss:
+ ca. 318 m² Gesamtfläche, davon:
+ ca. 17 m² Eingangshalle
+ zehn Büroräume
+ Küche, Toiletten sowie Dusche
2. Obergeschoss:
+ ca. 321 m² Gesamtfläche, davon:
+ neun Büroräume
+ Balkon, zwei Küchen, Abstellraum, Toiletten
3. Obergeschoss:
+ ca. 301 m² Gesamtfläche, davon:
+ acht Büroräume
+ zwei Balkone, zwei Küchen, ein Badezimmer, Toiletten
+ Heizraum
Mieteinnahmen
+ 9.359,22 EUR inklusive USt.
Freie Flächen
+ ca. 148 m² im obersten Stockwerk sowie
+ ca. 211 m² im Kellergeschoss der historischen Villa
+ ca. 309 m² in den zwei obersten Stockwerken des Neubaus
Das Potential
+ beide Gebäude können sowohl als gesamte Einheit, als auch getrennt voneinander genutzt werden
+ jede Etage kann durch die exzellente Raumplanung separat vermietet werden
+ die gesamte Infrastruktur bietet sich idealerweise für Büros, Arztpraxen, Trainingskurse oder Seminarveranstaltungen an
Lage und Infrastruktur
Die Lage dieser Liegenschaft in der historischen Altstadt Bratislavas sowie die sehr gute Verkehrsanbindung an Transitrouten nach Österreich und Ungarn bietet ungeheures Potential für mannigfaltige Nutzungsmöglichkeiten.
Die Liegenschaft befindet sich ca. eine Stunde mit dem Auto oder per Bahn von Wien entfernt.
+ Hauptbahnhof Bratislava
+ Bundesstraßen E58, E65, E75
+ Autobahn A6
Sonstiges
Wir ersuchen um Verständnis, dass wir aufgrund unserer Nachweispflicht gegenüber dem Eigentümer nur Anfragen mit vollständigen Kontaktdaten (Name, Adresse, Mobilnummer, Email) bearbeiten können.
Hinweis gemäß Energieausweisvorlagegesetz: Ein Energieausweis wurde vom Eigentümer bzw. Verkäufer, nach unserer Aufklärung über die generell geltende Vorlagepflicht, sowie Aufforderung zu seiner Erstellung noch nicht vorgelegt. Daher gilt zumindest eine dem Alter und der Art des Gebäudes entsprechende Gesamtenergieeffizienz als vereinbart. Wir übernehmen keinerlei Gewähr oder Haftung für die tatsächliche Energieeffizienz der angebotenen Immobilie.
Lage
Bus 2,50 km | Straßenbahn 3 km | Bahnhof 8 km | Autobahnanschluss 2,50 km | Supermarkt 3 km | Bäckerei 3 km | Einkaufszentrum 3 km | Ärzte 3 km | Apotheke 3 km | Krankenhaus 6 km | Klink 3 km | Schule 3 km | Kindergarten 3,50 km | Universität 2,50 km | Höhere Schule 6 km | Bank 3 km | Post 3,50 km | Polizei 4,50 km | Geldautomat 3 km
Die ungefähre Position der Immobilie auf Google Maps ansehen (Link auf externe Website)

























