Bis Ende 2026 befristet vermietetes Gründerzeit-Zinshaus mit baubewilligtem zweigeschossigen Dachgeschoss-Ausbau
1210 Wien, Renditeobjekt zum Kauf
Kontaktdaten
-
NameFrau Desirée Gottlieb
Geschäftsführung - Akademisch geprüfte Immobilienberaterin und Liegenschaftsmanagerin -
FirmaGottlieb Properties Immobilientreuhand GmbH
-
AdresseGluckgasse 1 / 8 & 9
1010 Wien -
E-Mail Direkt
-
Mobil
Objektdaten
-
Objekt ID3880
-
ObjekttypRenditeobjekt
-
Adresse(Pragerstraße / Brünner Straße)
1210 Wien
Wien -
Etagen im Haus3
-
Wohnfläche ca.340,63 m²
-
Grundstück ca.296 m²
-
Nutzfläche ca.375,63 m²
-
Kellerfläche ca.103,58 m²
-
Zustandprojektiert
-
Erschließungvollerschlossen
-
Heizwärmebedarf (HWB)41,20 kWh/(m²·a) (Klasse B)
-
Gesamtenergieeffizienz-Faktor (fGEE)0,76 (Klasse A)
-
ProvisionspflichtigJa
-
Käuferprovision3% des Kaufpreises zzgl. 20% USt.
-
Kaufpreis1.763.000 EUR
Ausstattung / Merkmale
- ✓ Neubau
Energieausweis
Objektbeschreibung
Beschreibung
Zum sofortigen Verkauf gelangt ein dreigeschossiges Zinshaus der Gründerzeit mit schlichter Fassade und einem ruhigem Innenhof in einer verkehrsberuhigten Seitengasse in guter Lage des 21. Wiener Gemeindebezirks Floridsdorf. Die Liegenschaft befindet sich in nur ca. 300 m Entfernung von der U-Bahn-Station Floridsdorf.
Auf einer Grundstücksfläche von ca. 296 m² umfasst das Zinshaus derzeit eine Wohnfläche von ca. 340,63 m². Die Liegenschaft ist bis Ende 2026 befristet vermietet.
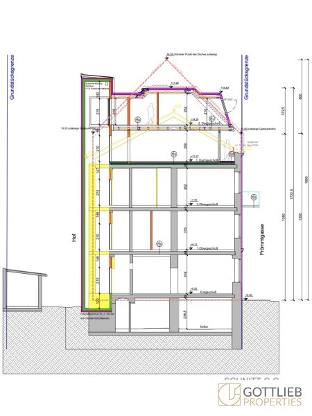
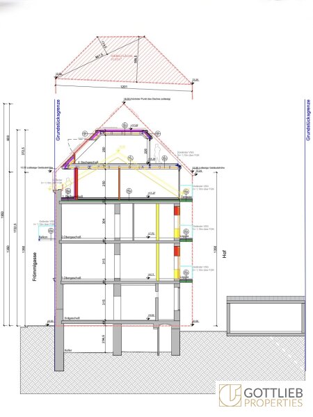
Für den Ausbau des Rohdachbodens liegt bereits eine Baubewilligung per November 2024 vor.
Eine Baugenehmigung zur Abtragung der bestehenden Dachkonstruktion und zum Ausbau des Dachgeschosses sieht eine Aufstockung um zwei Dachgeschosse vor, welche zusammen mit dem Altbestand insgesamt neun Wohneinheiten ermöglichen.
Durch den Um- und Ausbau ergibt sich eine projektierte Wohnnutzfläche von insgesamt ca. 611,59 m². Alle Wohnungen haben entweder Balkone oder Terrassen von insgesamt ca. 64,62 m², Loggien im Umfang von insgesamt ca. 18,64 m² oder einen Garten von insgesamt ca. 39,36 m².
Die bewilligte Planung gemäß Einreichplan sieht ein barrierefreies Treppenhaus im Innenhof mit Personenlift vom Erdgeschoss bis ins zweite Dachgeschoss sowie einen Kinderwagen- und Fahrradabstellraum vor.
Das Objekt bietet eine seltene Gelegenheit zur Entwicklung hochwertiger Wohneinheiten in einem klassischen Altbau mit Potenzial zur Wertsteigerung.
Der Bestand
+ drei Geschosse
+ Kellergeschoss
+ bestandsfrei per Ende 2026
Die Flächenwidmung
+ gemischtes Baugebiet
+ Bauklasse III
+ geschlossene Bauweise
+ Beschränkung der Gebäudehöhe auf 12 m
Der Ertrag
Laut aktueller Zinsliste beträgt der Jahreszinsertrag derzeit € 38.236,32 netto p.a.
Das Potential
+ behördlich genehmigte Baubewilligung per November 2024
+ Abtragung der bestehenden Dachkonstruktion
+ Aufstockung um zwei Dachgeschosse
+ Errichtung von neun Wohneinheiten mit insgesamt ca. 611,59 m² Nutzfläche
+ Straßen- und hofseitig gelegene Terrassen, Balkone und Loggien mit einer Größe von ca. 83,00 m²
+ Hofseitiger Garten mit einer Größe von ca. 39,00 m²
+ Errichtung eines barrierefreien Personenliftes
+ Kinderwagen- und Fahrradabstellraum
+ Müllraum
Lage
Der 21. Wiener Gemeindebezirk Floridsdorf liegt nördlich der Donau und erstreckt sich vom Donauufer bis zu den Ausläufern des Bisambergs. In den letzten Jahren hat sich der Bezirk dynamisch entwickelt und gilt heute als beliebte und lebenswerte Wohngegend.
Charakteristisch für Floridsdorf sind charmante Altbauten, moderne Wohnanlagen sowie traditionsreiche Gewerbebetriebe wie die Floridsdorfer Brauerei und die ÖBB-Werkstätten. Die kulturelle Vielfalt und der zum Teil dörfliche Charakter tragen wesentlich zum besonderen Flair des Bezirks bei.
Sämtliche Schulen und Kindergärten, Restaurants, Cafés, Bars sowie Geschäfte und Einrichtungen des täglichen Bedarfs befinden sich in Gehnähe. Die nahegelegte Brünner Straße sowie die Floridsdorfer Hauptstraße bieten zahlreiche Einkaufsmöglichkeiten, während der Floridsdorfer Markt zum gemütlichen Verweilen einlädt.
Erholung und Freizeitgestaltung findet man im weitläufigen Wasserpark, im romantischen Aupark oder entlang des Marchfeldkanals. Auch die Donauinsel liegt nur wenige Minuten entfernt und bietet zahlreiche Freizeit- und Sportmöglichkeiten. Das Bezirksmuseum Floridsdorf, das Strandbad Angelibad oder traditionelle Heurige in Strebersdorf runden das kulturelle und kulinarische Angebot ab.
Infrastruktur
+ U-Bahn-Linie U6
+ Autobus-Linien 28A, 29A, 33A, 34A und 36A
+ Straßenbahn-Linien 25, 26, 30 und 31
+ Schnellbahn S1, S2, S3, S7
Sonstiges
Wir ersuchen um Verständnis, dass wir aufgrund unserer Nachweispflicht gegenüber dem Eigentümer nur Anfragen mit vollständigen Kontaktdaten (Name, Adresse, Mobilnummer, Email) bearbeiten können.
Wir weisen darauf hin, dass zwischen dem Vermittler und dem zu vermittelnden Dritten ein familiäres oder wirtschaftliches Naheverhältnis besteht.
Lage
Bus 500 m | Straßenbahn 500 m | U-Bahn 500 m | Bahnhof 500 m | Autobahnanschluss 500 m | Supermarkt 500 m | Bäckerei 500 m | Einkaufszentrum 500 m | Ärzte 500 m | Apotheke 500 m | Krankenhaus 1,50 km | Klink 1 km | Schule 500 m | Kindergarten 500 m | Universität 1 km | Höhere Schule 500 m | Bank 500 m | Post 500 m | Polizei 500 m | Geldautomat 500 m
Die ungefähre Position der Immobilie auf Google Maps ansehen (Link auf externe Website)


























