Bestlage Pinzgau mit ca. 6% Rendite! 3-Zimmer-Maisonette mit Balkonen sowie beheiztem Aussenpool
5700 Zell am See, Etagenwohnung zum Kauf
Kontaktdaten
-
NameFrau Desirée Gottlieb
-
PositionGeschäftsführung - Akademisch geprüfte Immobilienberaterin und Liegenschaftsmanagerin
-
FirmaGottlieb Properties Immobilientreuhand GmbH
-
AnschriftGluckgasse 1 / 8 & 9
1010 Wien -
Mobil
Topobjekt, Topobjekte
Objektdaten
-
Objekt-ID3808
-
ObjekttypenEtagenwohnung, Ferienimmobilie, Wohnung
-
Adresse5700 Zell am See
(Pinzgau / Zeller See / Golfplatz Zell am See)
Salzburg -
Etagen im Haus3
-
Wohnfläche ca.75,76 m²
-
Nutzfläche ca.82,91 m²
-
Kellerfläche ca.1,65 m²
-
Balkon-/Terrassenfläche ca.14,30 m²
-
Zimmer3
-
Badezimmer2
-
Separate WC3
-
Balkone2
-
KücheOffene Küche
-
HeizungsartZentralheizung, Fußbodenheizung
-
Wesentliche EnergieträgerGas, Solar
-
Baujahr2004
-
Letzte Modernisierung2019
-
Zustandneuwertig
-
Erschließungvollerschlossen
-
BauweiseMassiv
-
Heizwärmebedarf (HWB)10,50 kWh/(m²·a) (Klasse A)
-
Gesamtenergieeffizienz-Faktor (fGEE)0,83 (Klasse A)
-
AußenstellplatzStellplatzmiete: 23,50 EUR (Anzahl: 1)
-
Sonstige PreisangabenEin Auto-Stellplatz ist bereits im Kaufpreis inkludiert.
-
Käuferprovision3 % des Kaufpreises zzgl. 20 % USt.
-
Kaufpreis pro m²9.407,79 EUR
-
Monatliche Kosten netto321,23 EUR
-
Monatliche Kosten MwSt.64,25 EUR
-
Monatliche Kosten brutto385,48 EUR
-
Sonstige Kosten netto23,50 EUR
-
Sonstige Kosten MwSt.4,70 EUR
-
Kaufpreis780.000 EUR
-
Betriebskosten netto297,73 EUR
-
Betriebskosten MwSt.59,55 EUR
Ausstattung / Merkmale
- ✓ Als Ferienimmobilie geeignet
- ✓ Außenstellplatz
- ✓ Balkon
- ✓ Balkon/Terrasse Südost
- ✓ Dusche
- ✓ Fliesenboden
- ✓ Garten/Gartennutzung
- ✓ Gäste-WC
- ✓ Hotelrestaurant angeschlossen
- ✓ Kabel-/Sat-TV
- ✓ Massivbauweise
- ✓ Neubau
- ✓ Offene Küche
- ✓ Parkettboden
- ✓ Sauna
- ✓ Separates WC
- ✓ Swimmingpool
- ✓ Vollmöbliert
- ✓ Wasch-/Trockenraum
- ✓ Wellnessbereich
Energieausweis
Objektbeschreibung
Mitten im wunderschönen Salzburger Pinzgau, nahe der Stadtgemeinde Zell am See, gelangt diese helle, sehr gut geschnittene 3-Zimmer-Etagenwohnung mit zwei Balkonen in einem im Jahre 2004 aufgestockten und im Jahre 2019 sanierten Architektenhaus zum sofortigen Verkauf. Sowohl die exklusive Lage mit Fernblick zum Kitzsteinhorn als auch die Hochwertigkeit der verwendeten Materialien sprechen für sich.
Die Wohnung besticht nicht nur durch den perfekten Grundriss mit einer überaus gelungenen Raumaufteilung, sondern ebenso durch ihre Südost-Ausrichtung. Die gemütlichen Balkone vermitteln zusätzlich ein außergewöhnlich behagliches sowie naturnahes Lebensgefühl am fußläufig erreichbaren Zeller See, eingebettet in eine atemberaubende und beeindruckende Berglandschaft.
Der Wohnung ist ein Abstellraum im Keller zugeordnet.
Ein Auto-Stellplatz ist bereits im Kaufpreis inkludiert.
- Grünruhelage
- ca. 76 m² Wohnfläche
- ca. 14 m² Balkone
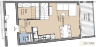
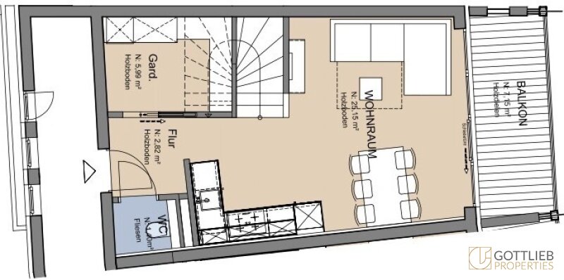
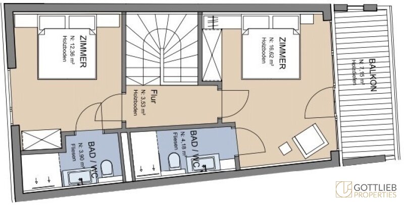
Erdgeschoss:
- Entrée
- ca. 25 m² Wohn-Ess-Bereich mit direktem Ausgang auf den südostseitigen Balkon
- offene Wohnküche
- eine Garderobe
- separate Gästetoilette
- Treppenaufgang in das Obergeschoss
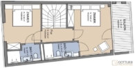
Obergeschoss:
- ca. 17 m² Master-Bedroom mit
- angeschlossenem Duschbad sowie Toilette und
- direktem Ausgang auf den südostseitigen-Balkon
- ca. 12 m² weiteres Schlafzimmer mit
- begehbarem Duschbad und Toilette
Ausstattung
+ zentrale Photovoltaik-Anlage
+ Wärmetauscher für Warmwasser im Apartment
- Gas-Fußbodenheizung bzw. Konvektoren
- Vollholz-Eichenparkettböden
- Bodenfliesen in den Nassräumen
- Holz-Dielen auf Terrasse und Balkon
+ komplett eingerichtetes Apartment mit österreichischen Qualitätsmöbeln
- voll ausgestattete Küche mit Induktionsherd, Backofen, Geschirrspüler, Kühlschrank
- zwei Bäder mit bodengleichen Duschen, Waschbecken, Handtuchwärmer sowie Toilette
- Garderobe bzw. Abstellraum im Eingangsbereich
- separate Toilette mit Handwaschbecken
- Balkonausstattung mit Außenbeleuchtung und Steckdosen
- Safe
- Sicherheitstüre
- Video-Gegensprechanlage
+ Auto-Stellplatz bereits im Kaufpreis inkludiert
+ Gemeinschaftsgarten
+ beheizter Outdoorpool
+ Wellnessbereich
+ zwei Saunas
+ zwei Infrarot-Kabinen
+ beheizter Skiraum mit Außenzugang sowie
+ absperrbarer Skischuh-Schrank mit beheiztem Schuh-Trockner für jedes Apartment
- Wasch- und Trockenraum
+ Ladestationen für Elektroautos
- der Wohnung ist ein Abstellraum im Keller zugeordnet
Renditeberechnung
Der Netto-Erlös inklusive Einrichtung beträgt ca. € 68.000.
Nach Abzug der Betriebskosten, laufenden Kosten, Vermietung und Management-Fee beträgt die Netto-Rendite ca. 6,25 % bzw. ca. € 48.700,00 p.a.
Verkehrsanbindung
- Tauern-Autobahn A10
- Bundesstraßen B311, B168 sowie B107
- Westautobahn A1
- Zugverbindung EC und IC
Die Stadt Salzburg erreicht man mit dem PKW in weniger als einer Stunde.
Lage und Infrastruktur
Der Pinzgau mit den Städten Zell am See, Kaprun, Saalbach-Hinterglemm und Saalfelden ist als Teil des Bundeslandes Salzburg einer der wichtigsten Fremdenverkehrsgebiete für den Ganzjahres-Tourismus.
Aufgrund der geographischen Lage am Alpenhauptkamm und der Nähe zum Naturschutzgebiet der Hohen Tauern, dem Großglockner und den Krimmler Wasserfällen war und ist diese Region ein beliebtes Urlaubs- und Ausflugsziel, welches auch heutzutage nichts von seiner rauen, jedoch idyllischen Romantik verloren hat. Zu jeder Jahreszeit können Naturliebhaber und Erholungssuchende die Wanderrouten zu Fuß oder mit dem Fahrrad erkunden oder im Winter weitläufige Skigebiete wie z.B. die Schmittenhöhe, Saalbach-Hinterglemm, Leogang, Fieberbrunn sowie das Kitzsteinhorn genießen.
Strandbäder rund um den Zeller See, Paragliding, Tennisplätze, der Flugplatz und der Golfclub Zell am See befinden sich im Nahgebiet in Schüttdorf.
Zell am See mit seinem naturgeschützten Zeller See und der Schmittenhöhe ist ein kleines romantisches Städtchen mit großem Charme. Die Stadt verfügt über ein Landesklinikum, Ärzte, Kindergärten, Volksschulen sowie das Gymnasium BG / BRG Zell am See. Ebenso ist ein flächendeckendes Angebot an Geschäften, Dienstleistungs- und Gastronomiebetrieben gewährleistet.
Sonstiges
Der Verkaufspreis versteht sich exklusive 20 % Umsatzsteuer.
Im selben Gebäude kommen weitere Wohnungen zwischen 90,21 m² und 187,79 m² Wohnfläche plus Terrassen zum sofortigen Verkauf.
Die Fotos stammen von einem anderen Apartment mit ähnlichem Grundriss im selben Hause und entsprechen der Einrichtung.
Heizkosten und Warmwasser sind verbrauchsabhängig und es handelt es sich hier um Akontozahlungen.
Die Wohnung eignet sich ausgezeichnet als Anlage- bzw. Vorsorgewohnung – Preis auf Anfrage.
Das Apartment wird möbliert übergeben.
Wir ersuchen um Verständnis, dass wir aufgrund unserer Nachweispflicht gegenüber dem Eigentümer nur Anfragen mit vollständigen Kontaktdaten (Name, Adresse, Mobilnummer, Email) bearbeiten können.
Wir weisen darauf hin, dass zwischen dem Vermittler und dem zu vermittelnden Dritten ein familiäres oder wirtschaftliches Naheverhältnis besteht.
Der Vermittler ist als Doppelmakler tätig.
Lage
Bus 500 m | Bahnhof 500 m | Flughafen 1,50 km | Supermarkt 500 m | Bäckerei 500 m | Einkaufszentrum 1 km | Ärzte 1 km | Apotheke 500 m | Krankenhaus 4 km | Schule 500 m | Kindergarten 4 km | Bank 500 m | Post 500 m | Polizei 2,50 km | Geldautomat 500 m
Die ungefähre Position der Immobilie auf Google Maps ansehen (Link auf externe Website)



























