Bestlage Unter-Sievering! Liebevoll modernisierte, teilmöblierte 2,5-Zimmer-Erstbezug-Wohnung mit Doppelgarage und Gartennutzung
1190 Wien, Wohnung zur Miete
Kontaktdaten
-
NameFrau Claudia Haslinger
Immobilienberaterin -
FirmaGottlieb Properties Immobilientreuhand GmbH
-
AdresseGluckgasse 1 / 8 & 9
1010 Wien -
E-Mail Direkt
-
Mobil
Topobjekt, Topobjekte
Objektdaten
-
Objekt ID3840
-
ObjekttypWohnung
-
Adresse(Hackenberggasse / Weinberggasse)
1190 Wien
Wien -
Etagen im Haus2
-
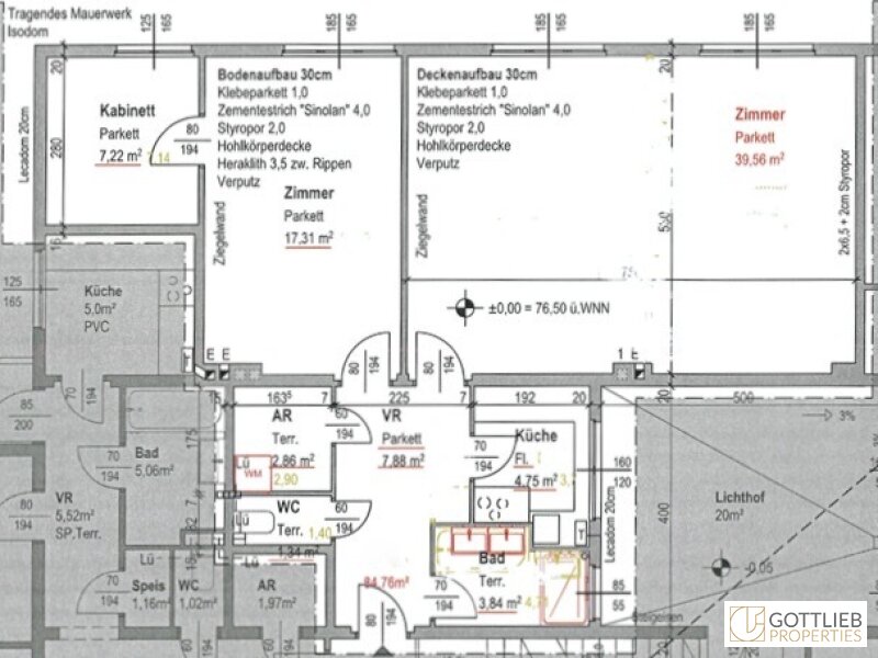
Wohnfläche ca.84,76 m²
-
Nutzfläche ca.84,76 m²
-
Kellerfläche ca.7,50 m²
-
Zimmer2,5
-
Badezimmer1
-
Separate WC1
-
HeizungsartEtagenheizung
-
Wesentlicher EnergieträgerGas
-
Baujahr1961
-
Letzte Modernisierung2022
-
Zustandvollsaniert
-
Erschließungvollerschlossen
-
Heizwärmebedarf (HWB)154,55 kWh/(m²·a) (Klasse E)
-
Gesamtenergieeffizienz-Faktor (fGEE)2,35 (Klasse D)
-
Maximalmietdauer5 Jahre
-
GaragenStellplatzmiete: 160 EUR (Anzahl: 2)
-
MieterprovisionGemäß Erstauftraggeberprinzip bezahlt der Abgeber die Provision.
-
Miete pro m²15,22 EUR
-
Sonstige Kosten netto62,21 EUR
-
Sonstige Kosten MwSt.12,44 EUR
-
Summe Miete netto1.290,17 EUR
-
Summe Miete MwSt.158,02 EUR
-
Sonstige PreisangabenDie Doppelgarage um € 160,00 exkl. 20% USt. ist im Mietpreis bereits enthalten.
-
Betriebskosten netto153,74 EUR
-
Betriebskosten MwSt.15,37 EUR
-
Gesamtmiete netto1.506,12 EUR
-
Gesamtmiete MwSt.185,83 EUR
-
Gesamtmiete1.691,95 EUR
Ausstattung / Merkmale
- ✓ Abstellraum
- ✓ Dusche
- ✓ Einbauküche
- ✓ Fliesenboden
- ✓ Garage
- ✓ Gartennutzung
- ✓ Kabel-/Sat-TV
- ✓ Kamin
- ✓ Neubau
- ✓ Parkettboden
- ✓ Separates WC
- ✓ Tageslichtbad
- ✓ Teilmöbliert
- ✓ Wasch-/Trockenraum
Energieausweis
Objektbeschreibung
Beschreibung
Zwischen Sieveringer Straße und Krottenbachstraße gelegen, gelangt diese lichtdurchflutete und teilmöblierte 2,5-Zimmer-Erstbezug-Wohnung mit Doppelgarage und Gartennutzung in Grünruhelage des 19. Wiener Gemeindebezirks zum sofortigen Vermietung.
Diese gut geschnittene, lichtdurchflutete Wohnung mit ca. 85 m² Wohnfläche ist südwestseitig ausgerichtet und beinhaltet einen geräumigen Vorraum, von dem aus man einen ca. 40 m² großen Wohn-Ess-Bereich mit offenem Kamin, ein ruhig gelegenes, ca. 17 m² großes Schlafzimmer, eine komplett ausgestattete Küche, ein Tageslicht-Duschbad, einen Abstellraum mit Waschmaschinen-Anschluss sowie eine separate Toilette erreicht. Das kleine ca. 7 m² große Kabinett ist vom Schlafzimmer aus begehbar.
Der Wohnung ist ein geräumiger Abstellraum zugeordnet.
Die Doppelgarage um € 160,00 exkl. 20% USt. ist im Mietpreis bereits enthalten.
+ absolute Grünruhelage
+ Hochparterre
+ ca. 84,76 m² Wohnfläche
+ ca. 39,56 m² Wohn-Ess-Bereich
+ ca. 4,75 m² Küche
+ ca. 17,31 m² Schlafzimmer
+ ca. 7,22 m² Kabinett / Kinderzimmer / Büro
+ ca. 3,84 m² Tageslicht-Duschbad
+ separate Toilette
+ ca. 2,86 m² Abstellraum
+ ca. 7,88 m² Vorzimmer
+ der Wohnung ist ein Kellerabteil zugeordnet
+ Abstellraum
+ Doppelgarage
Ausstattung
+ teilmöbliert
+ offener Kamin
+ Gasetagenheizung mit Therme der Marke "Vaillant"
+ Vollholz-Parkettböden
+ Fliesenböden in den Nassräumen und im Abstellraum
+ Tageslicht-Einbauküche komplett mit Kühl-Gefrierkombination, Herd mit Ceranfeld und Backrohr, Dunstabzug und Geschirrspülmaschine
+ Tageslicht-Duschbad mit bodenebener Glaswand-Dusche, Doppelwaschtisch mit Unterschrank und Spiegel sowie Handtuchwärmer
+ separate Toilette mit Handwaschbecken
+ Abstellraum mit Waschmaschinen-Anschluss
+ Innenjalousien
+ Gegensprechanlage
+ Beleuchtung und Stromanschluss in der Garage
+ Garten zur Allgemeinnutzung
+ Waschküche / Trockenraum zum Anschluss der eigenen Geräte
+ kleine "Außenküche" in der Doppelgarage
Verkehrsanbindung
+ Autobus-Linien 35A und 39A
+ S-Bahn-Linie S 45
+ Strassenbahn-Linie 38
Mit dem PKW erreichen Sie die Wiener Innenstadt in ca. 20 Minuten.
Lage und Infrastruktur
Der 19. Wiener Gemeindebezirk "Döbling" zählt zu den beliebtesten Wohnlagen Wiens. In der Sieveringer Straße, der Krottenbachstrasse und deren Seitengassen finden Sie sämtliche Geschäfte des täglichen Bedarfs sowie den beliebten Sonnberg-Markt, Apotheken, Ärzte und viele gemütliche Restaurants und Heurigen. Kindergärten, Volksschulen, Gymnasien sowie die Universität für Bodenkultur und die Tourismusschulen Modul befinden sich ebenfalls im Nahbereich.
Sämtliche Parkanlagen sowie der Wienerwald sind in wenigen Minuten erreichbar und laden zu vielfältigen Sport- und Freizeitmöglichkeiten.
Sonstiges
Wir ersuchen um Verständnis, dass wir aufgrund unserer Nachweispflicht gegenüber dem Eigentümer nur Anfragen mit vollständigen Kontaktdaten (Name, Adresse, Mobilnummer, Email) bearbeiten können.
Wir weisen darauf hin, dass zwischen dem Vermittler und dem zu vermittelnden Dritten ein familiäres oder wirtschaftliches Naheverhältnis besteht.
Der Immobilienmakler erklärt, dass er – entgegen dem in der Immobilienwirtschaft üblichen Geschäftsgebrauch des Doppelmaklers – einseitig nur für den Vermieter tätig ist.
Lage
Bus 500 m | Straßenbahn 1,50 km | U-Bahn 2,50 km | Bahnhof 1,50 km | Autobahnanschluss 3 km | Supermarkt 500 m | Bäckerei 500 m | Einkaufszentrum 3,50 km | Ärzte 500 m | Apotheke 500 m | Krankenhaus 1,50 km | Klink 1,50 km | Schule 500 m | Kindergarten 500 m | Universität 1 km | Höhere Schule 1,50 km | Bank 1 km | Post 1 km | Polizei 500 m | Geldautomat 1 km
Die ungefähre Position der Immobilie auf Google Maps ansehen (Link auf externe Website)



















